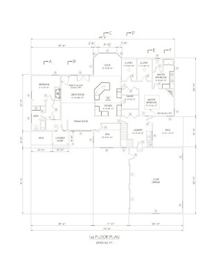
Ranch Style Home Floor Plan
The Ranch Style home that we’re getting ready to build that I mentioned in the Total House Construction Series – Foundation To Finish has a rather large footprint for a ranch style home. The house has a living square footage of 2,348 with only two bedrooms. 2,348 square feet may not sound like much but let me put that into perspective. If that was the footprint of a two story colonial the house would be almost 4,700 square feet!
I really like this floor plan. The house has some really interesting ceiling features and lots of great glass. The master bedroom features a tray ceiling and the family room and kitchen have cathedral ceilings.
This floor plan also offers a very private guest bedroom and bathroom suite. The people we’re building the home for are retired and they want a private area for family and friends to stay when visiting.
In future articles I’ll show you elevations of the new home. Excavation is scheduled to start next week so make sure to come back and follow the progress. Better yet sign up for an Email Subscription to Home Construction Improvement.













This is a nice blog, thank you for posting….